网站首页
|
地理位置
TEL:
0513-82601587,0513-82745660
网站首页
企业概况
产品中心
生产设备
业绩图片
更多业绩
企业荣誉
联系我们
热门搜索:
冷却塔系列
、
O系列过滤器
、
消毒设备类
、
加药装置类
产品系列
冷却塔系列
O系列过滤器
消毒设备类
加药装置类
联系大生
地址:江苏海门市三厂西郊工业园区
电话:0513-82601587,0513-82745660
传真:0513-82748530
手机:13806281768
产品展示
>
列表页
>
详细页
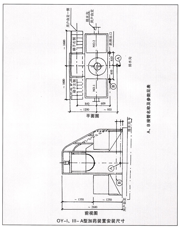
OY系列加药设备
上一章:
OA系列加药设备
下一章:
OZY型整体立式自动加药装置